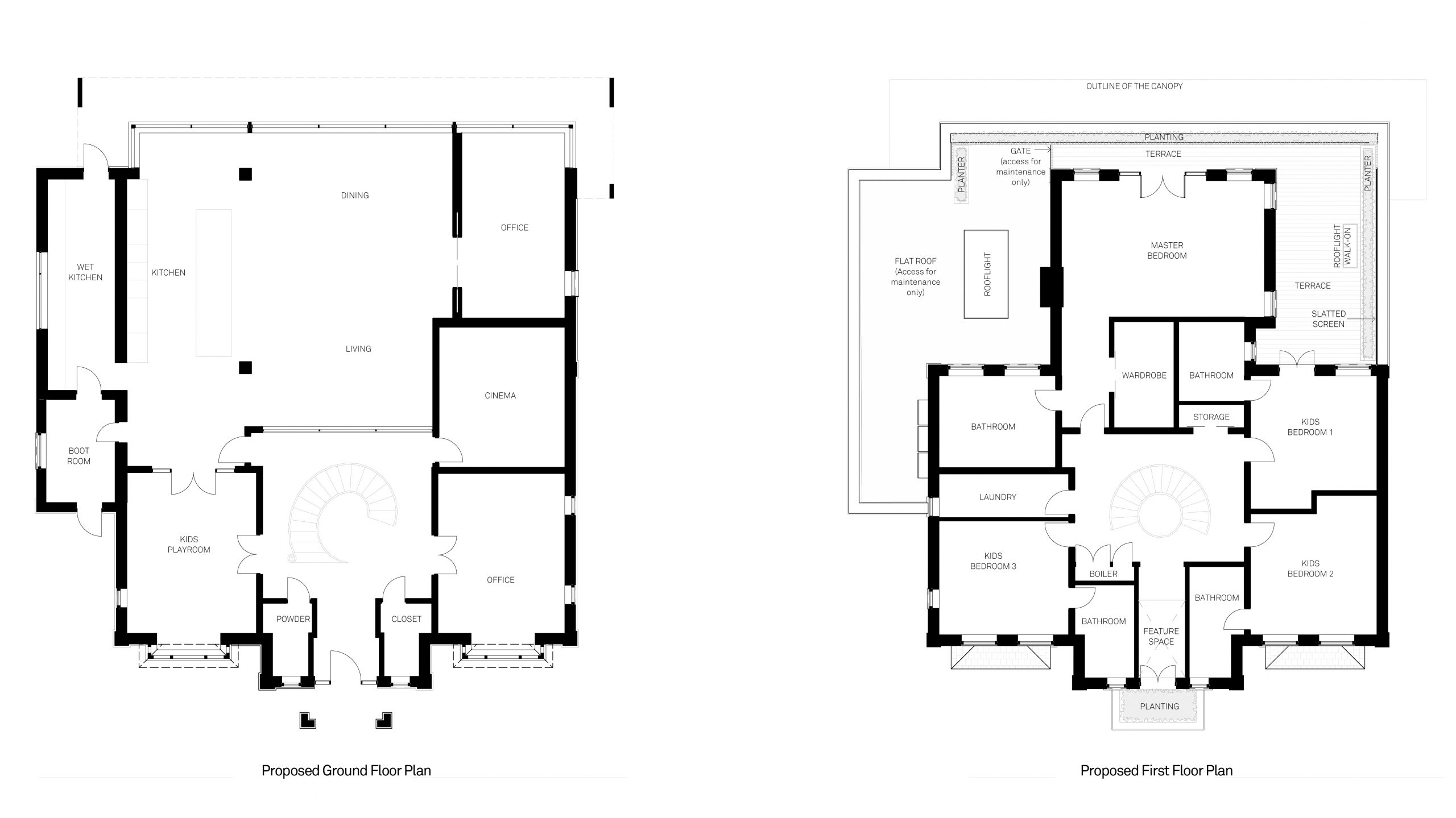
Radlett, Hertfordshire Ridgeway, Radlett Hertfordshire An extension to a family home in Radlett, Hertfordshire, working together with Mimimat Designs. Here the aim is to create a greater connection between the living spaces and the landscape. A minimalist glazed facade will be enclosed with a sleek aluminium canopy offering shade and protection from overheating. The terrace above serves the master bedroom and is screened by railings incorporated into planters.